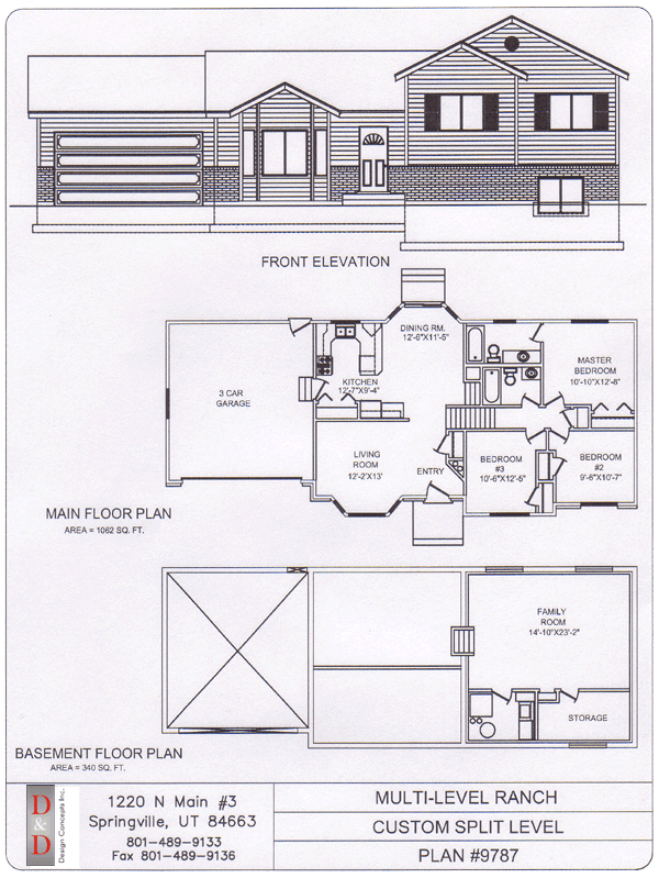
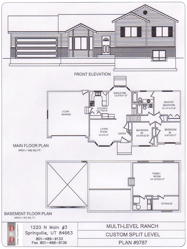
© D & D Design Concepts Inc. Wolz Designs